PISO. OFICINA/DEPARTAMENTO. FRENTE. APTO CREDITO
USD 52.000 - EN VENTA
Salta 324 - Monserrat - Monserrat, Capital Federal, Capital FederalInformación
- Código: KP440780
- Estado: Vendida
- Venta: USD 52.000
- Dirección: Salta 324
- Zona: Monserrat
- Barrio: Monserrat
- Ciudad: Capital Federal
- Provincia: Capital Federal
Descripción
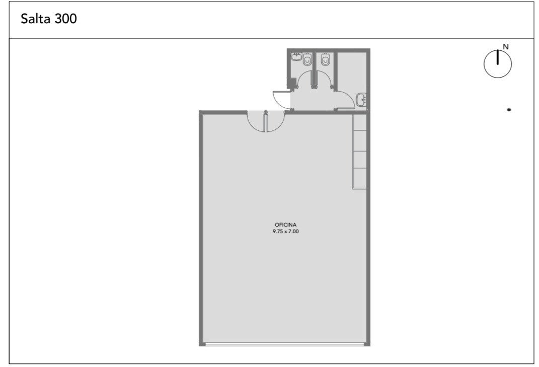
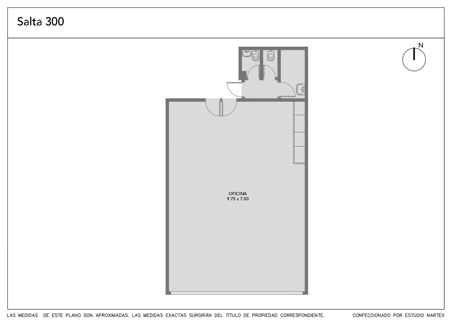
Oficina adaptable para vivienda, en piso único. Amplio ambiente al frente de 67 m2, con posibilidad de convertirlo en departamento de tres o cuatro ambientes. Al ingresar a la unidad, actualmente se encuentran 6 divisiones de durlock utilizadas para espacios de oficina. Posee dos puertas de ingreso y una tercera entrada para baño y cocina. Parte del ventanal del frente con DVH (doble vidrio). El tercer ingreso se encuentra a la izquierda del palier, de uso exclusivo de la unidad. Cuenta con 2 toilettes y un espacio de cocina con ventana. El edificio alberga una unidad por piso, todos ellos de iguales dimensiones y la mayoría reconvertidos en viviendas. La propiedad se encuentra ubicada en el barrio de Monserrat, a dos cuadras de Av. 9 de Julio, una de Av. Belgrano, a tan solo dos cuadras de la estacion de subte Moreno linea C , a tres cuadras del subte A estacion Lima, y cercana a sitios turísticos y de interés general. ABL:$ 15187 AYSA: $ 35986 Accesible a personas con movilidad reducida - - - - - Toda la información del aviso, incluyendo medidas, precio, impuestos, servicios, etc. son estimativos, sujetos a modificación y no vinculantes, según lo dispuesto en el art. 973, Cód. Civ. y Com. Toda la información del aviso, incluyendo medidas, precio, impuestos, servicios, etc. son estimativos, sujetos a modificación y no vinculantes, según lo dispuesto en el art. 973, Cód. Civ. y Com.
Detalles
- Categoría: Departamentos
- Apto credito: Sí
- Ambientes: 3
- Dormitorios: 2
- Baños: 1
- Piso: 4
- Superficie total: 67.80
- Superficie cubierta: 67.8
- Año de construcción: 1965
- Expensas: USD 183.705