MONOAMBIENTE. PLANTA BAJA. PATIO. A REFACCIONAR
USD 34.000 - EN VENTA
Bogota 261 - Caballito - Caballito, Capital Federal, Capital FederalInformación
- Código: KP440752
- Estado: Vendida
- Venta: USD 34.000
- Dirección: Bogota 261
- Zona: Caballito
- Barrio: Caballito
- Ciudad: Capital Federal
- Provincia: Capital Federal
Descripción
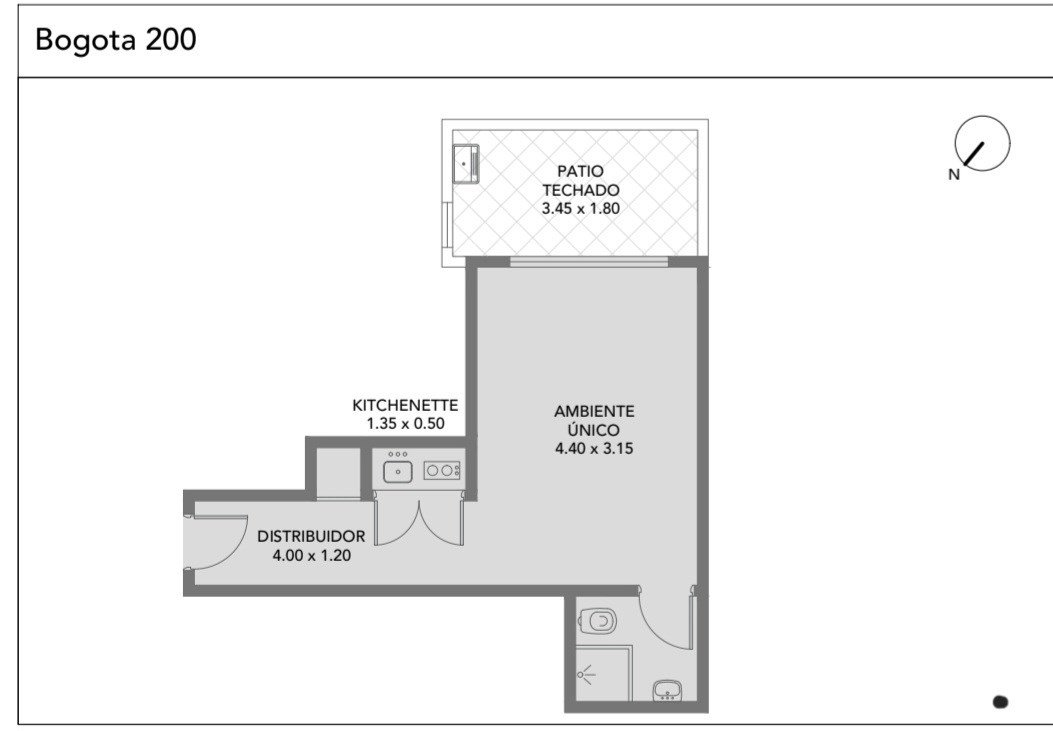
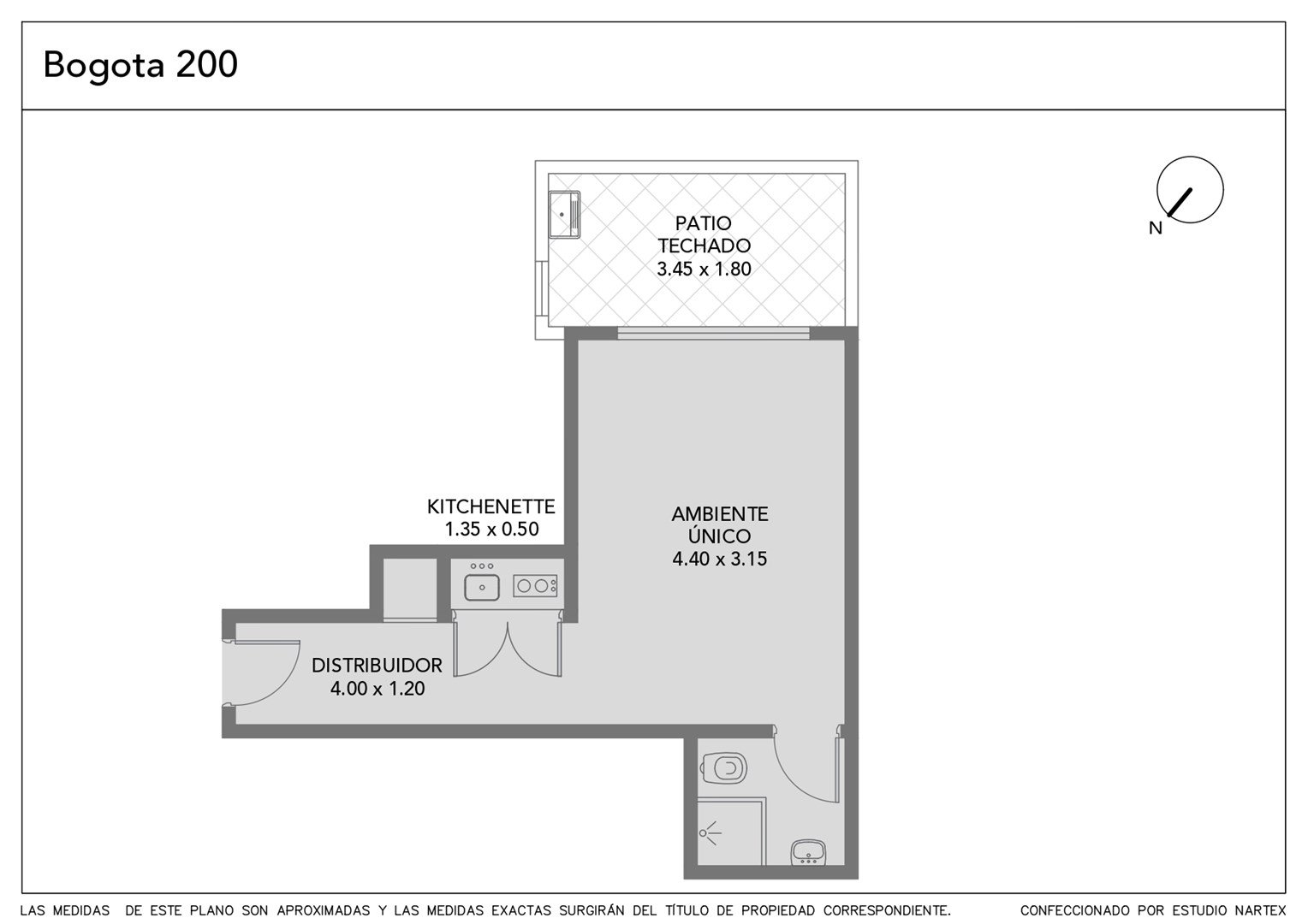
DEPARTAMENTO MONOAMBIENTE EN PLANTA BAJA CON PATIO. LA UNIDAD SE ENCUENTRA A REFACCIONAR EN PARTE. COCINA TIPO KITCHENETTE EN PASILLO DE INGRESO. POSEE TAMBIEN EQUIPO DE AIRE ACONDICIONADO FRIO CALOR. PATIO CUBIERTO CON TECHO REBATIBLE, PILETA DE LAVADO Y ESPACIO PARA LAVARROPA IDEAL PARA CONSULTORIO U OFICINA. APTO PROFESIONAL EL EDIFICIO SE ENCUENTRA EN EL BARRIO DE CABALLITO SOBRE LA CALLE BOGOTA ENTRE CAMPICHUELO Y ELEODORO LOBOS. A SOLO CINCO CUADRAS DE LA ESTACION DE SUBTE ACOYTE LINEA A, Y A SOLO 3 CUADRAS DEL PARQUE CENTENETARIO Y RIVADAVIA. TERRAZA DE USO COMUN EN TERCER PISO. No accesible para personas con movilidad reducida - - - - - Toda la información del aviso, incluyendo medidas, precio, impuestos, servicios, etc. son estimativos, sujetos a modificación y no vinculantes, según lo dispuesto en el art. 973, Cód. Civ. y Com. Toda la información del aviso, incluyendo medidas, precio, impuestos, servicios, etc. son estimativos, sujetos a modificación y no vinculantes, según lo dispuesto en el art. 973, Cód. Civ. y Com.
Detalles
- Categoría: Departamentos
- Apto credito: Sí
- Ambientes: 1
- Baños: 1
- Piso: PB
- Superficie total: 29.14
- Superficie cubierta: 23.31
- Año de construcción: 1969
- Expensas: USD 12.000