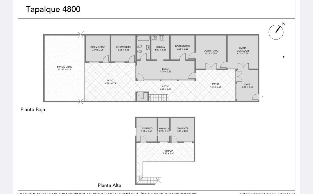
PH. 6 AMBIENTES. JARDIN. GALERIA. PATIO. TERRAZA. SIN EXPENSAS. APTO CREDITO
USD 183.000 - EN VENTA
Tapalque 4800 - Villa Luro - Villa Luro, Capital Federal, Capital FederalInformación
- Código: KP422168
- Estado: Vendida
- Venta: USD 183.000
- Dirección: Tapalque 4800
- Zona: Villa Luro
- Barrio: Villa Luro
- Ciudad: Capital Federal
- Provincia: Capital Federal
Descripción
PH 6 AMBIENTES AL CONTRAFRENTE, CON PATIO, TERRAZA, GALERIA Y JARDIN. SIN EXPENSAS..!!! APTO CREDITO!! SE DISTRIBUYE EN PLANTA BAJA Y PRIMER PISO. EN PLANTA BAJA TENEMOS AMBIENTE DE RECEPCION, 4 DORMITORIOS, COCINA, COMEDOR, LIVING, BAÑO COMPLETO, TOILETTE, GALERIA, PATIO Y UN HERMOSO JARDIN. EN PLANTA ALTA CONTAMOS CON LA TERRAZA, OTRO DORMITORIO Y LAVADERO. LA PROPIEDAD POSEE 349 METROS CUADRADOS TOTALES POR ESCRITURA, DE LOS CUALES 123 SON CUBIERTOS, 12 SEMICUBIERTOS Y 214 DESCUBIERTOS. EL PH ESTA UBICADO SOBRE LA CALLE TAPALQUE ENTRE AV. BRUIX Y ESCALADA, EN EL BARRIO DE PARQUE AVELLANEDA, A SOLO DOS CUADRAS DE AV. JUAN BAUTISTA ALBERDI Y A TRES DE AV. DIRECTORIO. SON SOLO CUATRO UNIDADES FUNCIONALES, Y LA QUE SE DESCRIBE ES LA UNIDAD DEL FONDO. ABL $ 6502 - AYSA $ 32348 ACCESIBLE PARA PERSONAS CON MOVILIDAD REDUCIDA PROPIEDAD COMERCIALIZAD POR DIMITRI PROPIEDADES, MATRICULA CPI 6110 ... - Toda la información del aviso, incluyendo medidas, precio, impuestos, servicios, etc. son estimativos, sujetos a modificación y no vinculantes, según lo dispuesto en el art. 973, Cód. Civ. y Com. Operación sujeta a que el propietario cumpla con R.G. N° 2371/07 Toda la información del aviso, incluyendo medidas, precio, impuestos, servicios, etc. son estimativos, sujetos a modificación y no vinculantes, según lo dispuesto en el art. 973, Cód. Civ. y Com.
Detalles
- Categoría: Departamentos
- Apto credito: Sí
- Ambientes: 6
- Dormitorios: 5
- Baños: 1
- Piso: PB
- Superficie cubierta: 123
- Superficie descubierta: 215