DEPARTAMENTO.3 AMBIENTES.FRENTE.BALCON.APTO CREDITO.
USD 94.000 - EN VENTA
Lafuente 64 - Flores - Flores, Capital Federal, Capital FederalInformación
- Código: KP422158
- Estado: Vendida
- Venta: USD 94.000
- Dirección: Lafuente 64
- Zona: Flores
- Barrio: Flores
- Ciudad: Capital Federal
- Provincia: Capital Federal
Descripción
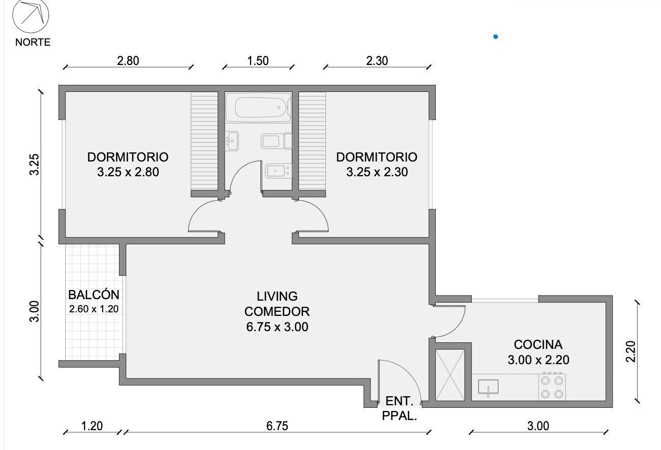
Departamento de tres ambientes, al frente, living comedor con salida a balcón, todo luz, cocina de generosas dimensiones con ventana, baño completo con bañadera, dos dormitorios ambos con placard y ventana, lo que permite contar con ventilación cruzada. El edificio posee ascensor camillero y se encuentra a media cuadra de Av. Rivadavia (Cabecera Subte A), Infinidad de líneas de Colectivos y cercano a estación Flores del Ferrocarril Sarmiento. ABL:$16.800 AYSA: $25.000 Accesible para personas con movilidad reducida. ... - Toda la información del aviso, incluyendo medidas, precio, impuestos, servicios, etc. son estimativos, sujetos a modificación y no vinculantes, según lo dispuesto en el art. 973, Cód. Civ. y Com. Operación sujeta a que el propietario cumpla con R.G. N° 2371/07 Toda la información del aviso, incluyendo medidas, precio, impuestos, servicios, etc. son estimativos, sujetos a modificación y no vinculantes, según lo dispuesto en el art. 973, Cód. Civ. y Com.
Detalles
- Categoría: Departamentos
- Apto credito: Sí
- Ambientes: 3
- Dormitorios: 2
- Baños: 1
- Piso: 3
- Superficie cubierta: 52.53
- Expensas: USD 55.000